横浜市港南区大久保2丁目36番9号
(京浜急行・横浜市営地下鉄ブルーライン 「上大岡」駅 徒歩13分)
住宅から上大岡駅までシャトルバス便が1日10便運行しており、ご入居者様に大変喜ばれています。高台にある為、日当たり、眺望が最高です。イベントもたくさん行っております。

住宅から上大岡駅までシャトルバス便が1日10便運行しており、ご入居者様に大変喜ばれています。高台にある為、日当たり、眺望が最高です。イベントもたくさん行っております。
小型犬または猫1匹まで ペットの飼育が可能です。
上大岡駅まで1日10便運行してます。買物や通院にとても便利です。
毎週水曜日、多目的室に協力店が来訪してスーパーとなりお買物が出来ます。
24時間スタッフ常駐で安心な生活をサポート。毎朝10時にインターホンにて安否確認実施。

神奈川県横浜市港南区丸山台2丁目2-10
内科、消化器科、循環器科、外科、整形外科、泌尿器科、放射線科、リハビリテーション科

スタッフ一同「明るく元気」に、ご入居者様とのふれあいを大切にしております。
食堂では手作りのお料理を提供しています。(昼食750円・夕食850円・・・税別)
ご入居者様には自由にお過ごしいただき、24時間スタッフが常駐しておりますのでご安心ください。

備え付き1台あり

帰宅外出時に便利な人感センサーライト・I型手すり・折り畳み椅子

火を使わずに安全なIHクッキング ヒーター(2口)

ユニットバス・自動湯はり・追い炊き機能付き

段差がなく暖かい色合いのフローリング

リビング・浴室・トイレ・寝室の4カ所に設置。事務所と繋がっており安心

バリアフリー・手すり・暖房便座 ウオシュレット機能付き

クローゼット・押入れ

来訪者の確認・対応・通話可能

優しい色合いの床と明るい雰囲気のエントランス

楽しいイベントや入居者様の憩いの場をご提供

長く続く廊下には手すりもあり雨天時のリハビリにも…

廊下の壁に入居者様からお預かりしている絵画や写真を飾り「小美術館」風で癒されます

入居者様の花々のお手入れでいつも鮮やかに四季があふれています

週1回3F浴室を訪問理美容でご提供
大好評で皆様に喜ばれています
無料シャトルバス1日10便運行 約6分

バス6分
駅ビルにあります。駅上にある レストラン、食品、日用品、洋服、生活雑貨、電気気類等の品ぞろえが豊富です。

徒歩15分
ソメイヨシノの枝が広がっていて 京急 上大岡駅からも見える「桜の花いっぱいの山」と評判です。

徒歩10分
食料品、日用品が揃います。

バス6分
上大岡駅にある行政サービスコーナーでは 区役所に行かなくても住民票や印鑑登録証明書などの証明書や市税の証明書を取ることが出来ます。

バス6分
京浜急行、横浜市営地下鉄ブルーラインの駅です。バスターミナルは横浜南部でも大規模で横浜市の副都心に指定されてます。

バス6分
近くでは駅ビル「カミオB1F」とゆめおおおかオフィスタワーB1Fにあり 集配局で土、日も営業している港南郵便局があります。
表は横スクロールします。
| ルームタイプ | 月額合計 | 賃料 | 管理費 | 生活支援サービス費 |
|---|---|---|---|---|
| Aタイプ(1K) | 105,500円~ | 69,000円~ | 20,000円 | 16,500円(税込)/人 |
| Bタイプ(1K) | 109,500円~ | 73,000円~ | 20,000円 | 16,500円(税込)/人 |
| Cタイプ(1DK) | 142,500円~ | 106,000円~ | 20,000円~ | 16,500円(税込)/人 |
| Dタイプ(1R) | 178,500円~ | 132,000円~ | 30,000円 | 16,500円(税込)/人 |
| Eタイプ(2DK) | 181,500円~ | 135,000円~ | 30,000円 | 16,500円(税込)/人 |
| Fタイプ(2DK) | 184,500円~ | 138,000円~ | 30,000円 | 16,500円(税込)/人 |
| G1タイプ(1DK) | 168,500円 | 122,000円 | 30,000円 | 16,500円(税込)/人 |
| G2タイプ(1DK) | 168,500円~ | 122,000円~ | 30,000円 | 16,500円(税込)/人 |
| Hタイプ(1DK) | 139,500円~ | 103,000円~ | 20,000円~ | 16,500円(税込)/人 |
| Iタイプ(1DK) | 139,500円~ | 103,000円~ | 20,000円~ | 16,500円(税込)/人 |
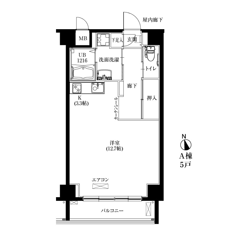
| Jタイプ(1LDK) | 174,500円~ | 128,000円~ | 30,000円 | 16,500円(税込)/人 |
| Kタイプ(1DK) | 141,500円~ | 105,000円~ | 20,000円~ | 16,500円(税込)/人 |
| Lタイプ(1LDK) | 191,500円~ | 145,000円~ | 30,000円 | 16,500円(税込)/人 |
| Mタイプ(1LDK) | 173,500円~ | 127,000円~ | 30,000円 | 16,500円(税込)/人 |
月額合計費用102,500円~186,500円・月額合計最多価格帯:106,500円
※上記税込料金
※敷金2ヶ月、入居一時金なし、礼金なし、更新料なし / 審査内容によっては敷金3ヶ月の場合もあり
※水道光熱費等はご入居者様と各供給会社との直接契約となります。
※A,Bタイプへのご入居はお一人のみとなります。
※お二人でC,H,I,Kタイプへご入居される場合は管理費が30,000円になります。
※家財保険(賃貸住宅総合/2年更新)への加入も必要となります。
※お食事を利用する場合は、昼食:990円(税込)/食、夕食:1,100円(税込)/食が別途必要です。